東別院と共に、
半世紀の時間を刻んで。

名古屋中心地に佇む、時を超えたオフィスビル。
静かな坂の上に、半世紀の時間が刻まれています。

ビルについて

時が育てた、
働く場所。

街の風景が少しずつ変わっていく中で、
変わらずここに在り続けてきたオフィスビルがあります。

多くの人が行き交い、
多くの仕事が生まれ、
日々の積み重ねによって培われた「安心感」です。

昭和から続いたレトロな空気は
静かな環境の中で、
仕事と向き合うための空間があります。

東別院と共に歩んできたオフィスビル
ビルの特徴1

東別院と共に歩んできたオフィスビル

半世紀の時間が育てたレトロな映画のセットのような風格、
大理石の落ち着いたエントランス

館内の様子
ビルの特徴2

館内は順次リニューアル

LED照明、改装済みトイレなど快適性を向上。

最寄り駅 東別院駅
ビルの特徴3

最寄り駅、徒歩5分

栄・金山へ好アクセスの
東別院駅へ徒歩5分、

屋上・駐車場
ビルの特徴4

屋上・駐車場

ドラマや映画に出てきそうな
屋上は古き良き雰囲気を出してくれます

REASON 選ばれる理由

富士見町八木ビルが
選ばれる理由

  • 名古屋駅まで約15分、駅徒歩5分
  • 賃料が安く、コストが抑えられる
  • ドラマのセットのようなレトロな雰囲気
  • 近隣主婦層の人材採用
  • 静かな街で通勤・就業中のストレスフリー
RECOMMEND この様な方に向いています
スタートアップ

スタートアップ

デザイン

デザイン

クリエイティブ

クリエイティブ

名古屋支社

名古屋支社

制作・IT・Web

制作・IT・Web

子育て関連事業

子育て関連事業

EQUIPMENT フロア案内・設備紹介

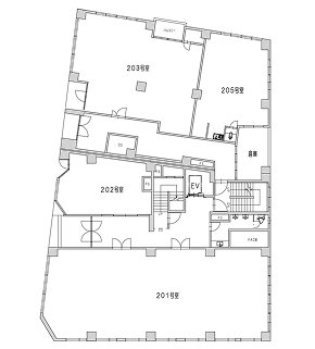
各フロア図面

1F 駐車場、エントランス

1F 駐車場、エントランス

2F エントランス・郵便ポスト

2F エントランス・郵便ポスト

3F 貸室(用途例:オフィス、作業場)

3F 貸室(用途例:オフィス、作業場)

4F 貸室(用途例:オフィス、作業場)

4F 貸室(用途例:オフィス、作業場)

5F 貸室(用途例:オフィス、作業場)

5F 貸室(用途例:オフィス、作業場)

6F 貸室(用途例:オフィス、作業場)

6F 貸室(用途例:オフィス、作業場)

設備一覧

エレベーター

エレベーター

防犯カメラ

防犯カメラ

駐車場

駐車場

OVERVIEW 物件概要

所在地・交通

名称:富士見町八木ビル

所在地:名古屋市中区富士見町13-19

交通:名古屋市営名城線「東別院駅」徒歩4分

   名古屋市営鶴舞線「上前津駅」徒歩7分

   名古屋市営名城線「金山駅」徒歩13分

建物情報

構造:鉄骨鉄筋コンクリート造

規模:地上11階建て

竣工:1972年3月(リニューアル:2025年5月)

敷地面積:570.79㎡(172.67坪)

建築面積:512.93㎡(155.16坪)

延床面積:5450.80㎡(1648.90坪)

設備概要

空調:個別空調

防犯:セキュリティー完備

  :24時間遠隔監視

防災:屋内消火栓、火災報知器

エレベーター:乗員9人乗り1基

駐車場:1F屋内 ※空き無し

その他:光ファイバー設置

LOCATION ロケーション

東別院という街

歴史と文化が根付いた東別院

繁華街も近く便利だが、落ち着いた街

東別院駅は名古屋駅まで19分、金山駅や栄駅に近い立地と近い

また東別院インター入口があり、車の移動も便利な街

散歩のコースに最適な東別院参道

散歩のコースに最適な東別院参道

近隣にはテレビ局「名古屋テレビ」

近隣にはテレビ局「名古屋テレビ」

スターバックスをはじめ、老舗やおしゃれカフェも点在

スターバックスをはじめ、老舗やおしゃれカフェも点在

ACCESS アクセス

〒460-0014 愛知県名古屋市中区富士見町13-19 富士見町八木ビル

地下鉄名城線「東別院」駅より徒歩5分

富士見町八木ビルに関するご質問・内覧など
気になることございましたら
ご遠慮なくお問い合わせください

お問い合わせはこちら